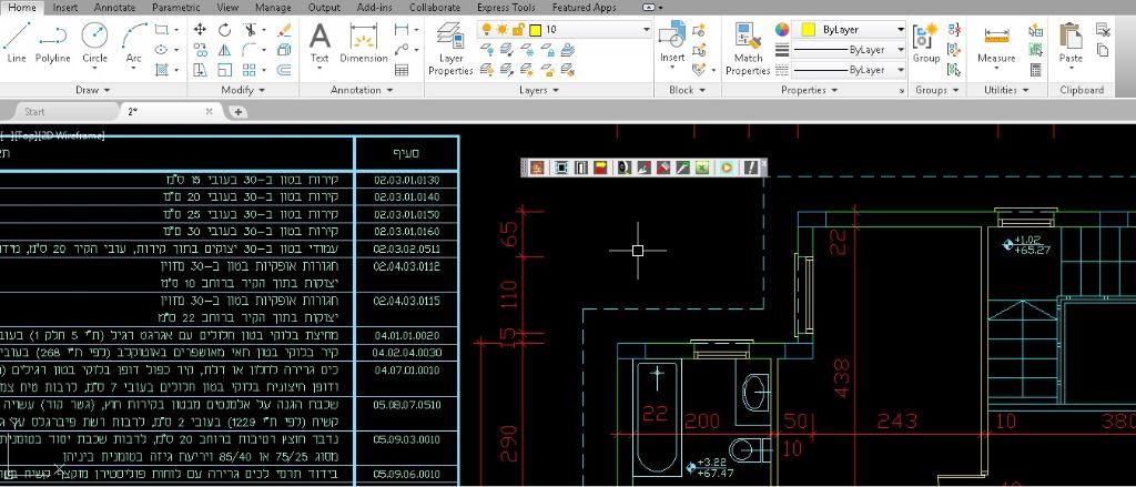
אפליקציית All2Calculate לחישוב כמויות של עבודות בניה
כתב כמויות בלחיצת כפתור!
חישוב כמויות של עבודות בניה: מרחבים רגילים, מרחבים מוגנים, קירות, מחיצות, חגורות, חלונות, דלתות.
חישוב כמויות של עבודות ריצוף: מרחבים רטובים, יבשים, קרמיקה, גרניט פורצלן, שיש, פרקט, עץ.
חישוב כמויות של עבודות חיפוי: תקרות בטון, תקרות מונמכות, טיח, קרמיקה, פסיפס, שיש, עץ.
חישוב כמויות של עבודות צביעה: צבע על בסיס מים, אקרילי, סינתטי, שכבה אחת, שתים או שלוש.
התוכנה מותאמת לתקן ישראלי, משתלבת אינטגרלית על תוכנת אוטוקאד.
הורד עכשיו לתקופת ניסיון ללא תשלום!
סרגל כלים |
|
![]() |
![]() |
![]() |
![]() |
סרגל זה מכיל פקודות נוספות… |
|



